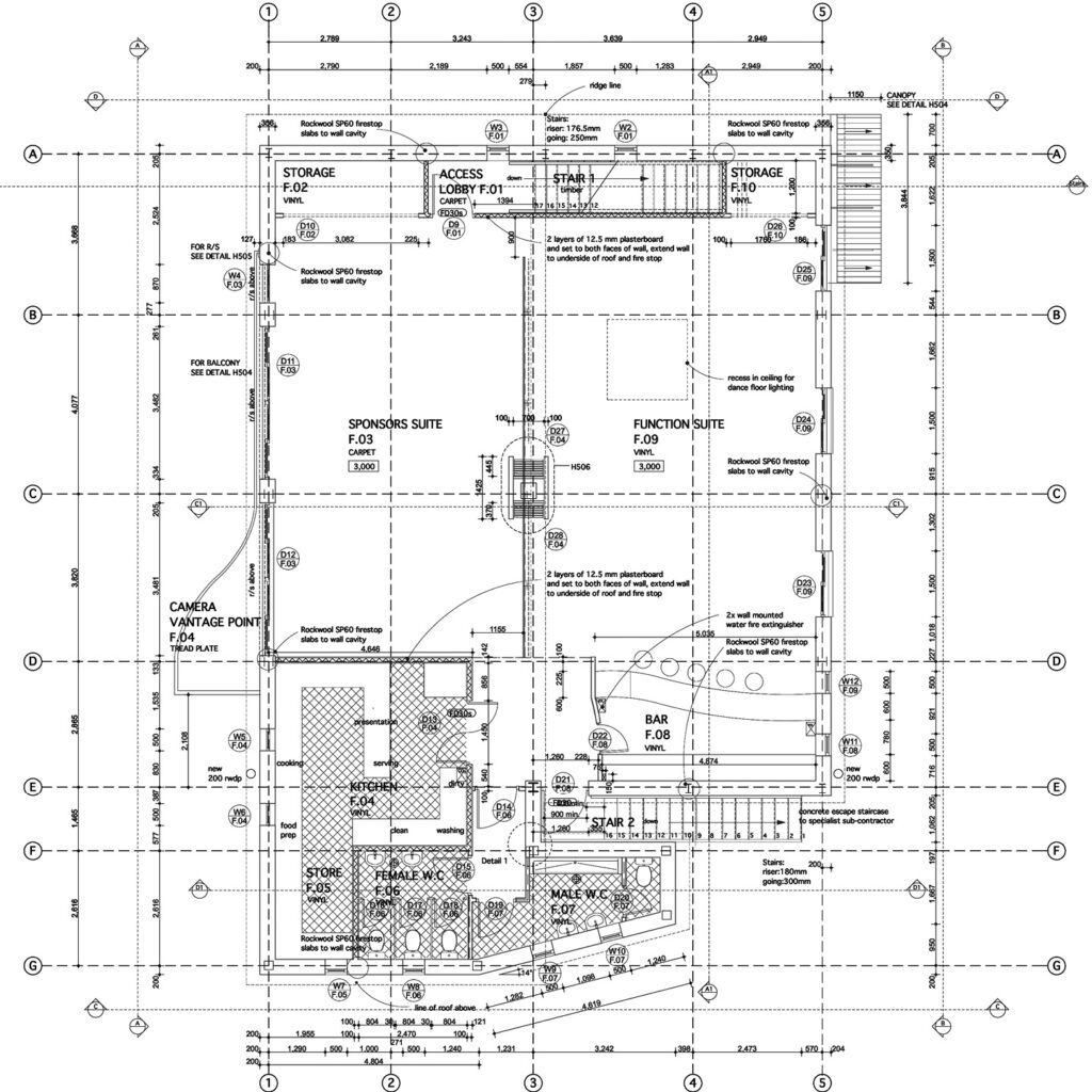
Worksop Town Football Club

The new club house for Worksop Town Football Club, provides a new cafeteria servery facility.

The cafeteria will be used to serve hot food to the club's spectators during football matches through a servery hatch on the south elevation.

Client
Worksop

Location
Worksop, Nottinghamshire, United Kingdom

Facility
Club House

Size
370m² | 3980 sqft

Scope
architecture, interior architecture